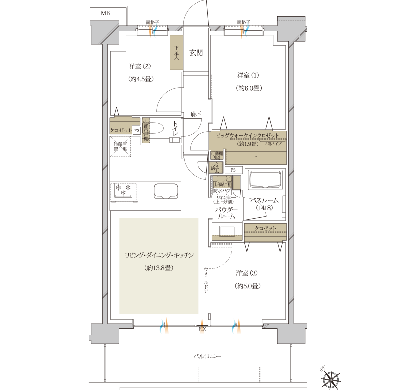
プラン内容
  • 専有面積/65.28㎡(約19.74坪)
  • バルコニー面積/12.80㎡(約3.87坪)
  • ビッグウォークインクロゼット
  • ウォールドア
ZEH-M
間取り図
凡例
  • BW=ビッグウォークインクロゼット