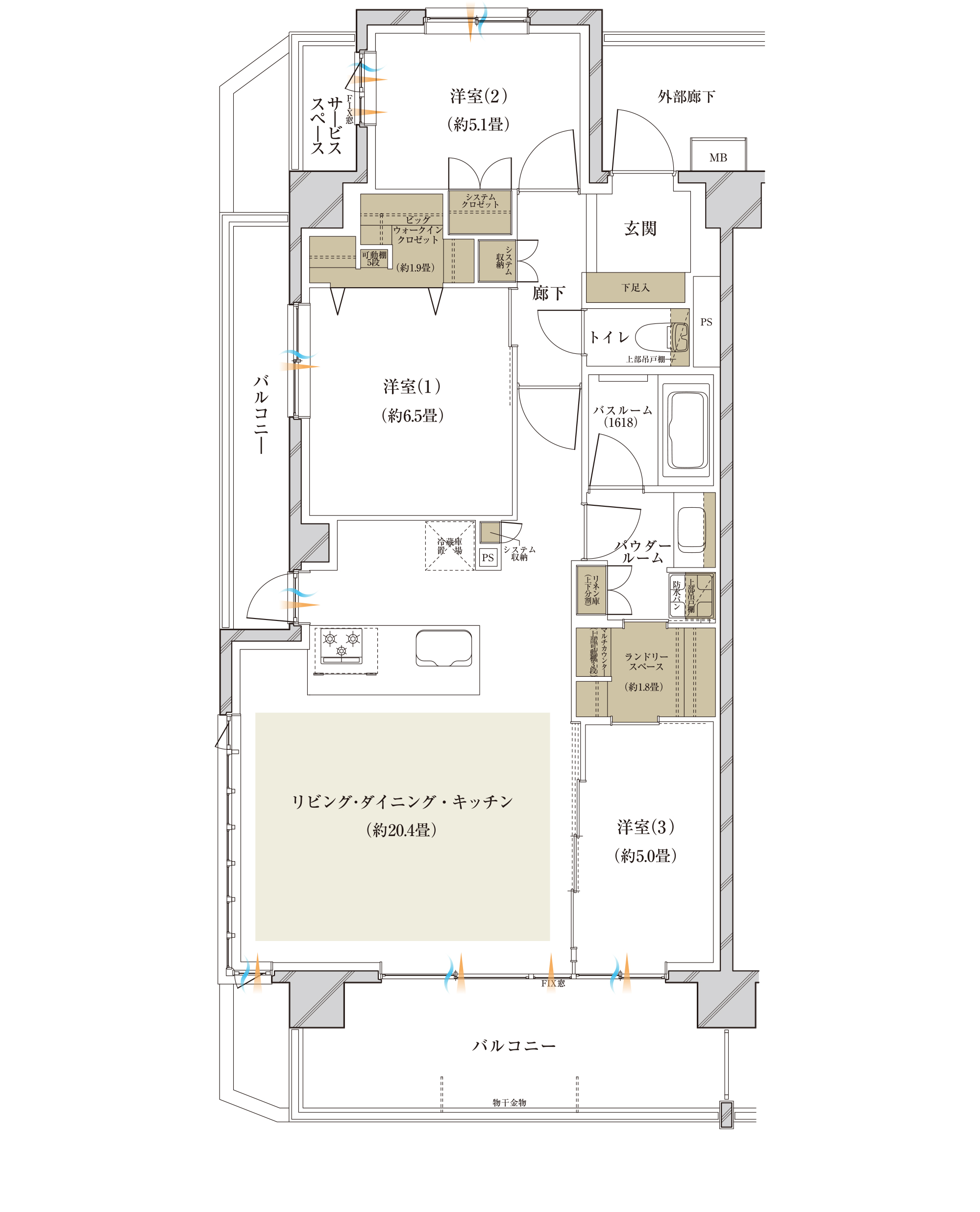
K type

3LDK+BW

専有面積/83.90㎡(約25.37坪)

バルコニー面積/18.40㎡(約5.56坪) 
サービススペース面積/1.90㎡(約0.57坪)

3面彩光による
開放的な角住戸プラン。

  • ●光を採り込み景観を楽しむ、リビング・ダイニングの
    大開口コーナーサッシ。
  • ●通風と採光性を高めたオープンカウンターキッチン。
  • ●パウダールームと洋室(3)から出入りできる、2Wayの
    ランドリースペース。
洋室(Tタイプ)完成予想CG※本プランの完成予想CGではございません。
※掲載の完成予想CGは、コーナーサッシのイメージであり本プランとは形状・仕様・色等は異なります。
一覧に戻る