MENU
CLOSE
image photo
LIMITED
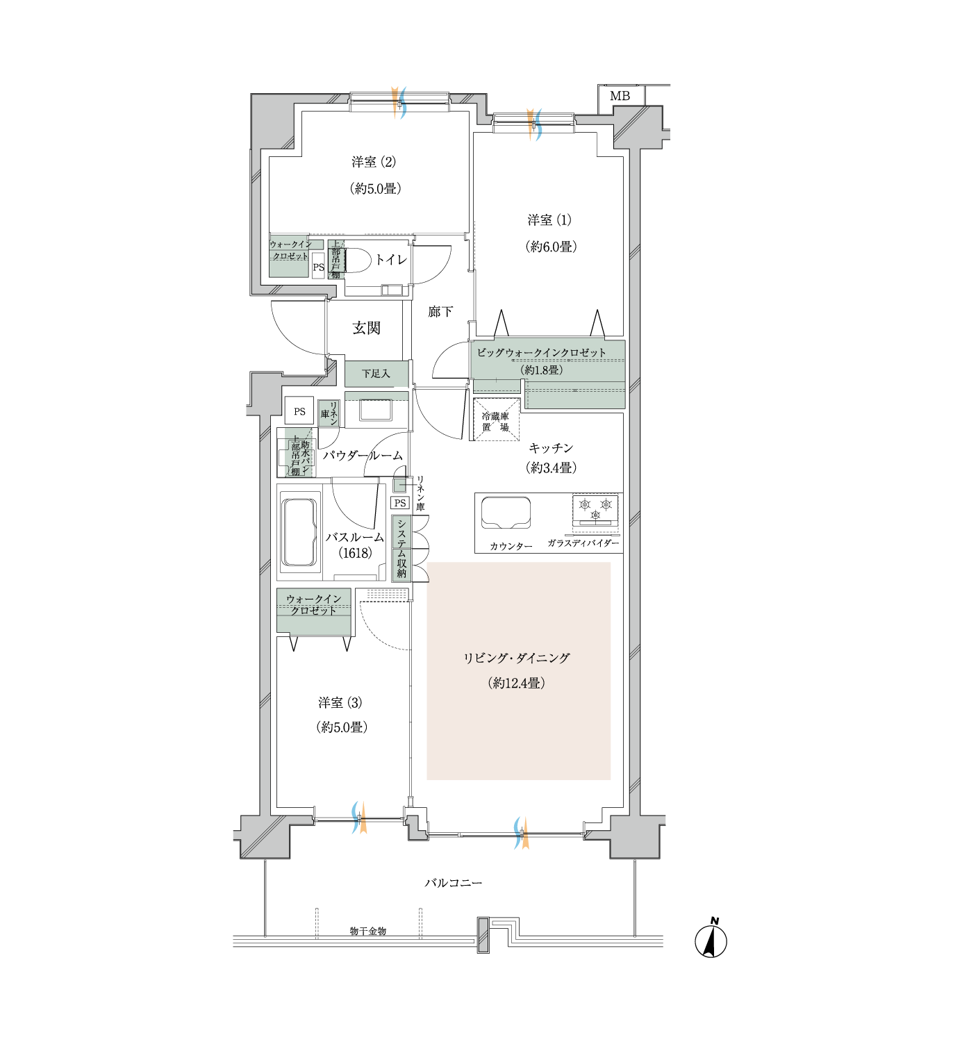
E type プラン概要
E type 間取り図