MENU
CLOSE

PLAN PLAN
image photo

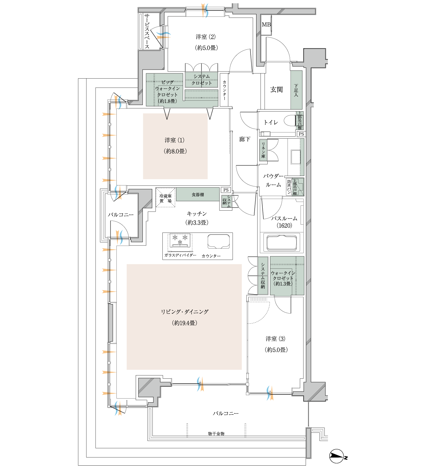
G type プラン概要
G type 間取り図