PLAN

Image Photo

Image Photo

日々の暮らしを彩りながら、
ゆとりある時を愉しめる空間に。

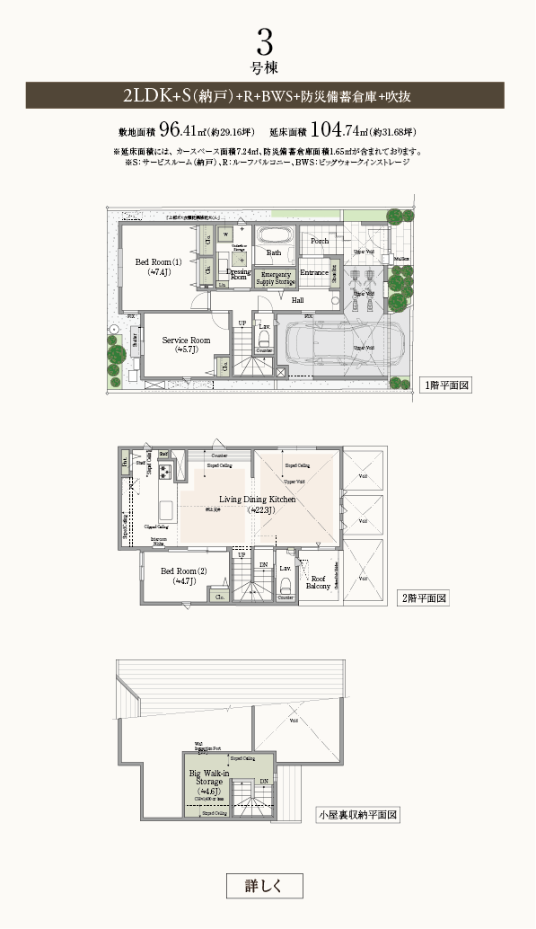
  • 「ヴェレーナガーデン浜田山一丁目」では、リビングに開放的な吹抜を設け、シューズインクロゼットやウォークインクロゼットのあるプラン、ルーフバルコニーのあるプランなど、一邸ごとに異なる個性を求めたプランニングを採用。
    また全邸に、階段でアクセスできるビッグウォークインストレージを設置。
    邸宅に相応しい上質感と共に、ここに住まうことでゆとりが感じられるような空間づくりを大切にしました。

優雅なひとときを紡ぐ、
ゆとりと開放感を求めた邸宅プラン。

ヴェレーナガーデンシリーズの
施工実績のご紹介

※掲載の写真は当社他物件の施工例であり、本物件の写真ではありません。

  • ヴェレーナガーデン浜田山(分譲済)/リビング・ダイニング吹抜

  • ヴェレーナガーデン浜田山(分譲済)/ビッグウォークインストレージ(小屋裏収納)

※掲載の間取り図は計画段階の図面を基に作成しており、今後変更となる場合がございます。※坪換算は1㎡=0.3025坪で小数点3位以下は切り捨てとしています。※洋室・他の面積は壁芯計算で算出しています。また、1畳は1.62㎡として算出しています。※リビング・ダイニング・キッチンの畳数表記は、リビング・ダイニング・キッチンの扉より内側の面積からキッチンの面積を含んだもので算出しております。※「Image Photo」の表記がある写真はイメージです。