ROOM
PLAN
真のラグジュアリーを追求した、
人生の誇りとなる住空間。
90㎡超の吹抜LDを有するメゾネット、
開放的なルーフバルコニー、
プライベートガーデンや掘こたつ、
ロフトなど独創性と贅が交わる
私邸空間が、ここに結実。
ゆとりと開放がもたらす、
真のプレミアムレジデンスへ。
メゾネット(CKmrタイプ有償コーディネート例〈費用別途〉)(分譲済)完成予想CG
MAISONETTE
メゾネット
暮らしの中に、
格別の開放感を宿すメゾネット。
2層吹抜のダイナミックな開放感と、
上下階を自在に使いこなす高い機能性。
その融合が生み出す、光と寛ぎに満ちた住空間。
大きな窓から降り注ぐ陽光が、
リビング・ダイニングを明るく彩り、
ご家族やご友人とのひとときをより豊かに演出します。
(※一部住戸)
ルーフバルコニー(BIrタイプ有償コーディネート例〈費用別途〉)(分譲済)完成予想CG
ROOF BALCONY
ルーフバルコニー
優雅にアウトドアを愉しむ、
開放的なルーフバルコニー。
心地よい陽射しと開放感に包まれるルーフバルコニーは、
グラスを片手に語らいを愉しむひとときも読書やヨガなど自分だけの時間にもふさわしい場所。
アウトドアの歓びを優雅に、そして気ままに愉しめる、
この上ないプライベート空間が、
暮らしの質を高めてくれます。(※一部住戸)
現地10階相当の高さから南・西方面を望むパノラマ写真〈2025年3月撮影〉
※掲載の写真は現地10階相当の高さから南・西方面を撮影(2025年3月)したパノラマ写真を一部CG加工したものであり、実際の住戸からの眺望や景観とは異なります。
なお眺望や景観は階数・向き・住戸タイプにより異なり、周辺環境の変化などに伴い将来に渡り保証されるものではありません。予めご了承ください。
プライベートガーデン(CAgタイプ有償コーディネート例〈費用別途〉)(分譲済)完成予想CG
PRIVATE GARDEN
プライベートガーデン
光と風が織りなす、
あなただけのガーデンリゾート。
テラス付きのプライベートガーデンは、
まるで戸建のような開放感。
食事や読書、趣味を楽しんだり、
週末のホームパーティを開いたり、
日常に上質なひとときを添えます。(※一部住戸)
ヴェレーナシリーズの
施工実績のご紹介
掲載の写真は当社他物件の施工例であり、
本物件の写真ではありません。
本物件とは、形状・仕様・色等は異なります。
予めご了承ください。
また、造作・仕様変更等のオプション品
(費用別途)が含まれております。
参考写真
FAMILY CLOSET
ファミリークロゼット
参考写真
SHOSE IN CLOSET
シューズインクロゼット
□概念図
MULTI SPACE
マルチスペース
収納スペースやホビースペース、ドレッシングルームやファミリーライブラリーなど多彩な使い方ができるマルチスペース(納戸)。
□概念図
SLIDING DOOR
3枚引込戸
全開放して広い空間として利用したり、閉じて個室使いにするなど、フレキシブルな使い方ができる3枚引込戸。
□概念図
CRANK-IN ENTRANCE
クランクイン玄関
玄関から廊下の動線をコーナーにすることで直接室内が見えづらいクランクイン玄関。プライバシーに配慮した動線です。
参考写真
VIEW BATHROOM
ビューバスルーム
明るい光が差し込み、開放感を感じながら、入浴をお愉しみいただける空間です。
参考写真
CORNER SASH
コーナーサッシ
開放的な眺望と光の広がりをもたらし、室内により豊かな明るさと開放感を演出します。
参考写真
MULTIPLE WINDOW SASH
連窓サッシ
リビングと洋室間の壁を極力なくし、窓が一体的に見える連窓サッシ。ひとつながりの窓ならではの開放感と明るさを叶えます。
KITCHEN VARIATIONS
使い勝手を追求した、
バリエーション豊かなキッチン。
参考写真
□概念図
ISLAND KITCHEN
アイランドキッチン
キッチンの両サイドから行き来できるため作業しやすく、ダイニングやリビングにいる人とコミュニケーションが取りやすい開放的なキッチンです。
□概念図
PENINSULA KITCHEN
ペニンシュラキッチン
開放感があり、対面のコミュニケーションが取りやすいキッチン。一方が壁になっているので、コンロの油汚れなども掃除しやすいのが魅力です。
□概念図
L-shaped KITCHEN
L型キッチン
L字の形の角の部分に広い作業スペースを取ることができます。また、コンロとシンクの移動が少なく調理の動線に優れています。
□概念図
with DOOR KITCHEN
扉付きキッチン
□概念図
with WINDOW KITCHEN
小窓付きキッチン
自然光を取り込むことで日中でもキッチンが明るくなります。さらに換気がしやすく、においや煙などがこもりにくいので快適です。
image photo
ROOM PLAN
メゾネット、掘こたつプランなど
46㎡台〜100㎡台の多彩な全56タイプ
開放感あふれる角住戸メゾネットプラン
CGm TYPE
専有面積 97.80㎡ (約29.58坪)
3LDK
+SC
□バルコニー面積/27.07㎡(約8.18坪)
□サービススペース面積/3.29㎡(約0.99坪)
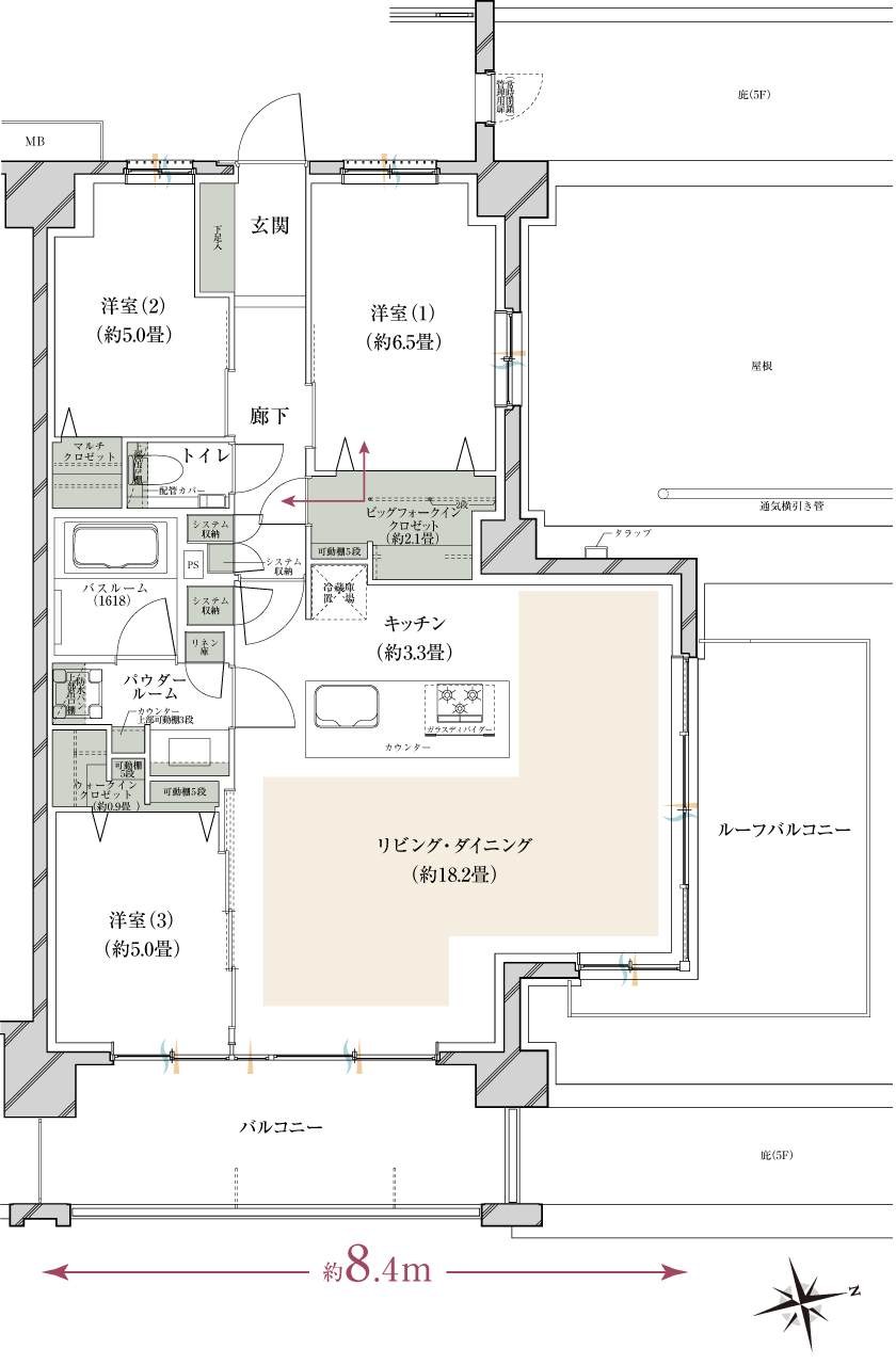
100㎡超・ルーフバルコニー付き角住戸プラン
BMr TYPE
専有面積 100.76㎡ (約30.47坪)
3LDK
+R+BW
□バルコニー面積/18.20㎡(約5.50坪)
□ルーフバルコニー面積/12.83㎡(約3.88坪)
ルーフバルコニー付き3LDK角住戸プラン
CJr TYPE
専有面積 83.41㎡ (約25.23坪)
3LDK
+R+BW+W
□バルコニー面積/12.30㎡(約3.72坪)
□ルーフバルコニー面積/11.78㎡(約3.56坪)
ルーフバルコニー付き最上階角住戸プラン
CLr TYPE
専有面積 83.73㎡ (約25.32坪)
3LDK
+R+2BW
□バルコニー面積/12.28㎡(約3.71坪)
□ルーフバルコニー面積/7.98㎡(約2.41坪)
ファミリークロゼット付き角住戸プラン
BH TYPE
専有面積 85.80㎡ (約25.95坪)
3LDK
+FC+2W
□バルコニー面積/12.44㎡(約3.76坪)
□サービススペース面積/2.29㎡(約0.69坪)
ビッグウォークインクロゼット付きプラン
AE TYPE
専有面積 71.37㎡ (約21.58坪)
3LDK
+BW+W
□バルコニー面積/14.00㎡(約4.23坪)
ウォークインクロゼット付き角住戸プラン
BA TYPE
専有面積 75.82㎡ (約22.93坪)
3LDK
+W
□バルコニー面積/6.73㎡(約2.03坪)
□サービススペース面積/5.16㎡(約1.56坪)
ビッグウォークインクロゼット付きプラン
BC TYPE
専有面積 69.54㎡ (約21.03坪)
3LDK
+BW
□バルコニー面積/12.81㎡(約3.87坪)
ファミリークロゼット付きプラン
BF1 TYPE
専有面積 73.08㎡ (約22.10坪)
3LDK
+FC
□バルコニー面積/9.99㎡(約3.02坪)
ファミリークロゼット付きプラン
CC TYPE
専有面積 73.09㎡ (約22.10坪)
3LDK
+FC+BW
□バルコニー面積/10.55㎡(約3.19坪)
ビッグウォークインクロゼット付きプラン
CF1 TYPE
専有面積 70.84㎡ (約21.42坪)
3LDK
+2BW
□バルコニー面積/13.01㎡(約3.93坪)
プライベートガーデン&テラス付きプラン
CDg TYPE
専有面積 73.09㎡ (約22.10坪)
3LDK
+T+PG+FC
□テラス面積/9.49㎡(約2.87坪)
□プライベートガーデン面積/24.21㎡(約7.32坪)
